




Plot for sale
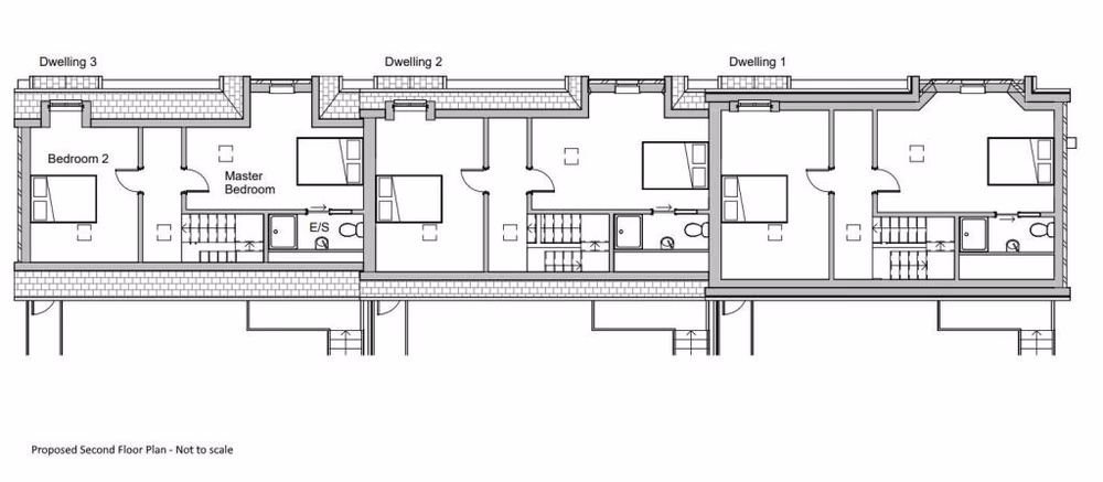
Development site with full planning permission granted for the demolition of existing garage block to construct 3 x three bedroom terraced dwellings (C3 Use Class) with external amenity space, first floor rear balconies, landscaping and associated works. Toronto Road offers a cul-de-sac ...
Plot for sale
Description
Development site with full planning permission granted for the demolition of existing garage block to construct 3 x three bedroom terraced dwellings (C3 Use Class) with external amenity space, first floor rear balconies, landscaping and associated works. Toronto Road offers a cul-de-sac ...
Contact Agent
Smart Picks — Professionals Relevant to This Land
Based on this property's key features, here are the specialists you may want to consult as part of your due diligence: land agents, rics surveyors, rural solicitors and planning consultants.

Land Agents
Essential for navigating the land market, finding buyers, and securing the best price.

RICS Surveyors
High-value property (£350K+) requires professional valuation for accurate pricing and due diligence.

Rural Solicitors
Significant investment (£350K+) requires legal expertise for conveyancing, title checks, and transaction security.

Planning Consultants
Planning-sensitive site needs expert guidance for applications and development strategy.
Location
Development Site